-
气体与细水雾
PMG10/32浙快达的型号
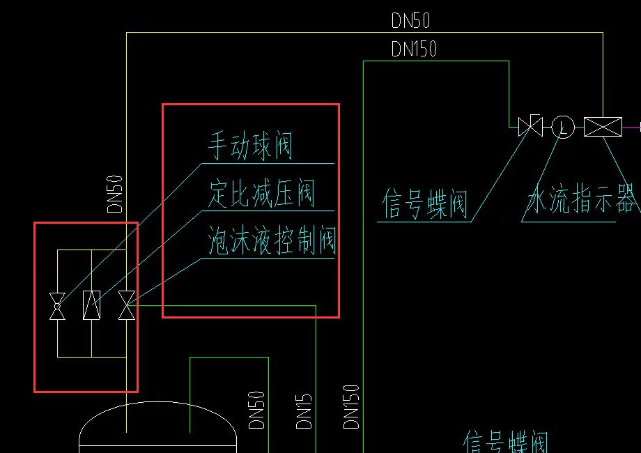
PKXF50泡沫液控制阀泡沫罐压力泄放两用控制,另外加购可配置(非标配),默配电磁阀,均是与雨淋阀组可联动工作
标准连接螺纹DN50,
无dn65口径泡沫液控阀,23.4.30
1)主要功能是:闭式泡沫-水喷淋灭火装置中,泡沫液的控制,通过报警阀的报警阀压力 水进行驱动使主阀开启;同时亦可通过对控制腔进行手动或电动达到对泡沫液的开启控制。
2)泡沫液控制、压力泄放两用控制阀主 要适用介质于:水、泡沫原液、泡沫混合 液。
3)泡沫液控制、压力泄放两用控制阀材 料为铜合金,紧固件为不锈钢,具有耐腐 蚀性强、动作灵敏,维护简单、寿命长等优点。
![1678504927915020.jpg stk(hk]nv8z@i7_v3}6dn@9_副本.jpg](http://www.0623119.com/static/upload/image/20230311/1678504927915020.jpg)
通常安 装于闭式泡沫-水喷淋灭火系统或雨淋泡沫 -水喷淋系统中对泡沫液的控制
泡沫液控制阀是闭式泡沫水喷淋装置一个核心部件,由弹簧,阀体,端盖,主阀芯,密封圈,轴杆,活塞,排水阀芯,驱动接头,冲洗启闭旋塞组成,外形呈十字型,平时一端充入泡沫原液,经内流道进入主阀芯上侧,下压主阀芯,加上弹簧顶推力,主阀芯下移处于关闭状态;动作时,驱动水流进入活塞下方,主阀芯上移开启,输出泡沫原液,能很好的控制消防泡沫罐内泡沫原液的输出。广泛应用于地下车库、仓库、厂房、隧道等场所。
23.5.11更新
↓图纸正常的画法要求

出厂默认的组装样式↓

↓以下正常不用说的,就是看看即可,以下是其它样式的安装方法参考



- 上一篇:泡沫产生器降落槽丨不锈钢泡沫降落槽丨PCG8泡沫缓降槽丨泡沫跌落槽
- 下一篇:没有了!









































